采动巷道侧向高低位厚硬顶板破断模式试验研究

赵善坤1,2,赵 阳1,2,王春来3,王 寅1,2,陈 增3

(1.煤炭资源高效开采与洁净利用国家重点实验室,北京 100013;2.煤炭科学技术研究院有限公司 矿山安全技术研究分院,北京 100013;3.中国矿业大学(北京) 能源与矿业学院,北京 100083)

要:陕蒙地区冲击地压显现大多发生在二次采掘扰动影响下,煤层上方厚硬岩层结构破断诱发工作面采场附近动压显现已成为煤矿生产中重大安全隐患。为阐明采动巷道上覆高低位厚硬岩层破断对区段煤柱受力以及巷道围岩稳定性的影响,建立高低位厚硬岩层破断结构的力学模型,得到破断扰动影响下区段煤柱结构变形特征及应力分布特征,以巴彦高勒煤矿11盘区煤样试样为研究对象,利用自行设计的高位岩层模拟加载装置,借助非接触式全场应变测量系统的数字散斑相关分析方法,对高低位厚硬岩层在区段煤柱上方不同破断位置组合下区段煤柱及低位岩层的应力变形特征进行了试验研究。分析了上覆高低位厚硬岩层侧向不同断裂位置组合下区段煤柱受力特征及应力传递机制,建立了巷道上部厚硬顶板不同断裂位置与结构整体失稳荷载的力学模型。结果表明:高低位厚硬顶板岩层破断将会引起煤柱采空区应力集中,高低位厚硬岩层不同的破断位置组合,对下部岩层的运动变形和区段煤柱应力分布和巷道围岩稳定影响显著。区段煤柱整体结构稳定性与破断点位置密切相关,煤体在回转作用下破坏所需的应力大小与高位岩层顶板破断点对采空区顶煤的力矩负相关。随着破断点远离区段煤柱,区段煤柱受力由压剪逐渐转化为采空区煤顶传递的压弯作用。高低位厚硬岩层顶板破断的相对位置影响低位顶板的破断情况,当低位破断点处于高位破断点以内,低位顶板随高位顶板破断1次,反之则低位岩层顶板将会随着高位岩层破断回转发生2次破断。随着高位顶板的破断,采动巷道及煤柱上覆岩层应力减小,区段煤柱稳定性下降,冲击地压风险增大。试验研究为陕蒙地区深部厚硬顶板条件下采动巷道动力灾害防治和区段煤柱设计优化提供了参考。

关键词:采动巷道;冲击地压;区段煤柱;高低位厚硬岩层;破断模拟试验

0 引 言

煤炭在一次能源结构中的主导地位在未来很长一段时间内不会动摇[1]。未来我国能源生产消费依旧以煤炭为主的格局不会改变[2-4]。深部开采已成为目前煤炭资源开发新常态[5-7],我国主要成煤时期为石炭纪、二叠纪和侏罗纪[8]。西北地区侏罗煤是大型河流相和湖泊相沉积体系下高位泥炭沼泽的产物,煤层上方多含厚硬岩层结构。据统计,西北地区60%以上矿井的主采煤层上方100 m范围内大多含有厚度为8~15 m、普氏系数大于4且层间距离较小的强度高、距离近、整体性强、垮冒性差的厚硬岩层结构,易造成工作面后方及侧向采空区悬顶长度过大,诱发工作面采场附近动压显现,已成为该地区煤矿安全生产中最大的安全隐患之一。陕蒙地区冲击地压显现大多发生在受二次采掘扰动影响的回风巷煤巷之中。采动巷道上覆厚硬岩层结构位于上工作面采空区边缘并在区段煤柱上方局部形成弧形三角块铰接结构[9-10],其中厚硬岩层采空区侧向破断方式、破断位置及其与区段煤柱的相互位置关系,直接影响区段煤柱的应力分布和结构强度[11-13]

采动巷道的形成与巷道布置方式密切相关[14-15],采动巷道区段煤柱侧向厚硬顶板运动规律和破断方式受区段煤柱宽度和上一工作面及本工作面开采后上覆岩层运动及破断特征影响显著。围绕采场上覆岩层运动及破断规律先后提出了悬臂岩梁假说、压力拱假说、铰接岩梁假说(Kuznetsov,1951)、预成裂隙假说,并建立了上覆岩层弹性基础梁模型,这些成果奠定了矿山压力与岩层控制学科基础并促进了该学科后续的飞速发展[16-17]。钱鸣高等[18-21]通过总结大量生产实践经验和观测数据,在完善预成裂隙假说和铰接岩梁假说的基础上,建立了上覆岩层开采后“砌体梁”式平衡结构力学模型。宋振骐等[22-23]以上覆岩层运动为核心,通过将上覆岩层中同期运动的岩层组视为整体运动传递应力岩梁,认为顶板断裂岩块因相互咬合而始终可以向煤壁及采空区矸石侧传递作用力,提出了“传递岩梁”学说。在冲击地压防治理论方面,齐庆新等[24-26]从冲击地压防治的角度,提出了应力控制防冲。窦林名等[27-28]主张通过对煤岩体进行损伤软化,降低煤岩体的强度,调整转移煤体局部应力集中并使其向深部转移,进而降低冲击地压的强度,形成了强度弱化减冲理论。

分析二次采掘扰动影响下巷道上覆厚硬岩层侧向不同破断位置对区段煤柱受力特征影响,建立上覆厚硬岩层侧向不同破断结构下区段煤柱力学模型和失稳判据,对于弄清陕蒙地区冲击地压发生机理,指导现场冲击地压防治具有重要的理论意义。笔者以鄂尔多斯乌审旗巴彦高勒煤矿为工程研究背景,开展采动巷道侧向高低位厚硬顶板不同结构破断模式试验研究。通过自主研制的模拟顶板垮断加载装置和加工大尺寸煤岩试件模拟分析上覆高低位厚硬岩层侧向不同断裂位置组合下区段煤柱受力特征,分析采动巷道区段煤柱高低位厚硬顶板结构破断特征及应力传递机制,建立高低位厚硬岩层破断结构的力学模型,得到破断扰动影响下区段煤柱结构变形特征及应力分布特征,获得煤柱的动力灾害防治和设计优化依据,为我国陕蒙地区深部煤炭资源的安全高效开采提供保障。

1 试验设计

试验方案为将高位基本顶板的活动作为力源,通过低位直接顶板传递至煤柱产生挤压作用的过程。试验方案中,高位基本顶可以视为刚性体,其在回转装置的作用下模拟基本顶断裂;特制岩板模拟低位直接顶,煤体圆孔模拟巷道,侧向开口模拟采空区。试验的整体过程表征基本顶垮断挤压直接顶作用在采空区煤柱的工程实际问题。试验在煤炭资源高效开采与洁净利用国家重点实验室开展完成。

1.1 试样制作

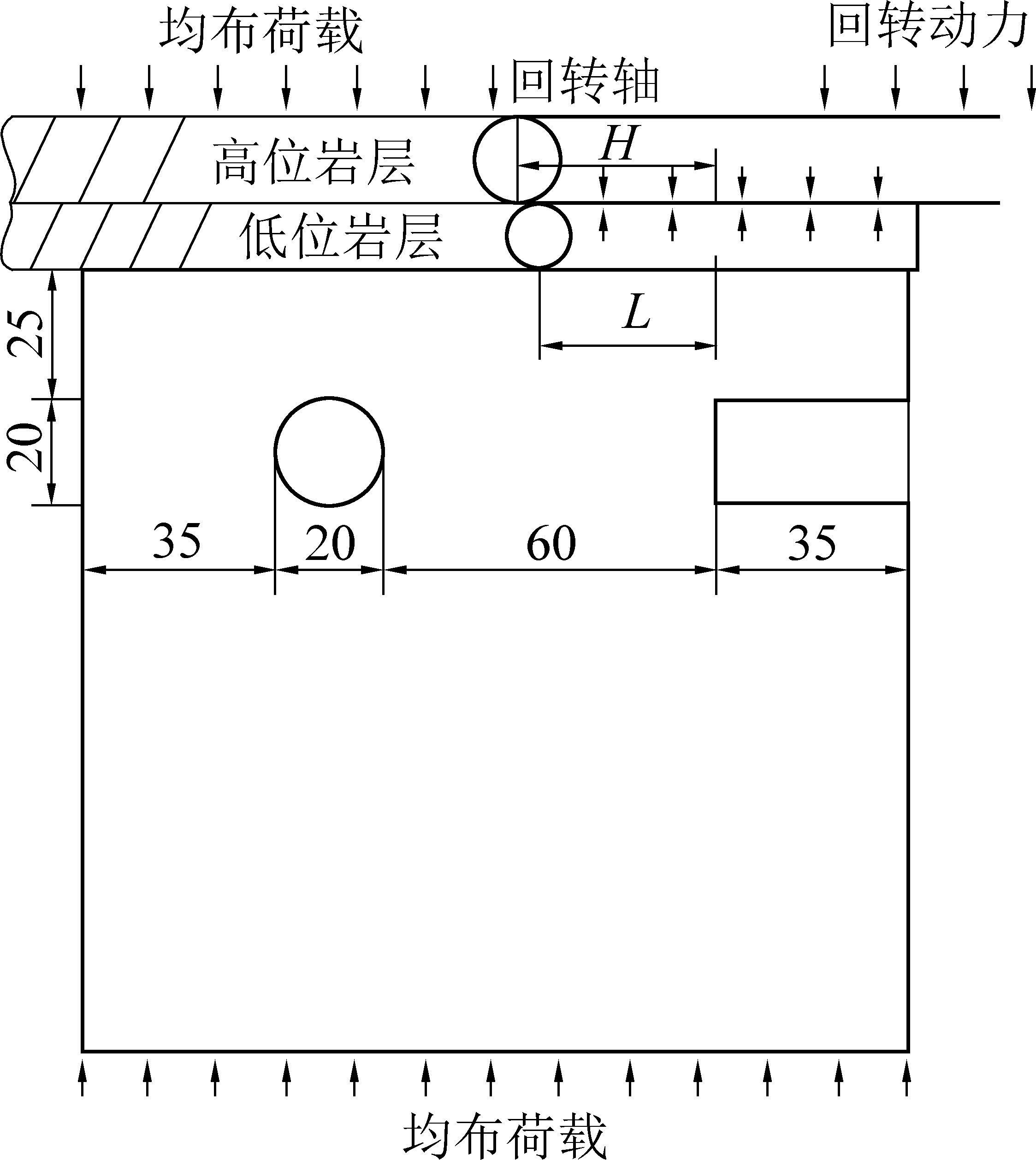
试验所用煤岩样取自巴彦高勒煤矿11盘区,该盘区为矿井首采盘区,311103工作面内煤层平均厚度为5.42 m,平均倾角为1.5°。煤层上方100 m范围内存在4层厚硬岩层,尤其是煤层上方60 m范围内的3层厚硬顶板,其结构特征及力学特性对沿空煤巷矿压显现影响显著。由冲击倾向性鉴定报告可知该盘区煤体具有弱冲击倾向性,煤岩样的力学参数见表1,冲击倾向性鉴定结果见表2。将煤加工为150 mm×150 mm×150 mm的立方体煤样,岩石加工为150 mm×150 mm×25 mm的板型岩样。利用双端面磨石机和调速磨石机对煤岩试样进行研磨精加工,保证试件6个表面任意两端面不平行度低于0.05 mm,轴向偏差不应大于0.25°。使用特制加工的直径为20 mm的金刚石钻头在煤样边缘先后开孔,相邻钻孔之间用高强度电钻修边,模拟侧向采空区,并且在平行于侧向采空区、间隔为60 mm的位置钻孔模拟临空巷道工作面,钻进过程中控制速度,按照先小孔、再扩孔、后修孔的顺序,加工钻孔。对中粒砂岩岩板进行了预制裂缝,分别在岩板长边1/4处、1/2处位置,采用长距锉刀制取深度约为5 mm的裂缝,用以在试验中控制低位厚硬岩层的破断位置。

表1 煤层及顶板力学参数测试统计

Table 1 Statistical for testing mechanical parameters of coal seam and roof

岩层块体密度 /(kg·m-3)单轴抗压强度/MPa弹性模量/GPa泊松比单轴抗拉强度/MPa内摩擦角/(°)黏聚力/MPa顶板42 206.0642.21512.3410.3601.45636.4214.673顶板32 206.0632.91511.3520.3681.69740.1113.382顶板22 140.7739.92112.3170.3591.48335.7415.530顶板12 224.5033.80411.3560.3661.42133.7615.7133煤上1 325.4022.5973.4740.2822.49318.5213.8943煤下1 275.9033.9792.2160.2791.15819.7413.750

表2 煤冲击倾向性结果

Table 2 Coal impact tendency result

煤层动态破坏时间DT/ms冲击能量指数KE弹性能力指数WET单轴抗压强度Rc/MPa冲击倾向强弱标准DT≤50KE≥5WET≥5Rc≥14强50500KE<1.5WET<2Rc<7无3煤上1254.214.8922.597弱3煤下1674.454.5328.979弱

以311103工作面回风巷道为背景,按照现场巷道真实断面长×高=5.5 m×4.5 m和区段煤柱宽度20 m进行同比例缩小。简化采动巷道断面为直径20 mm的圆形巷道,区段煤柱宽度为60 mm,采空区侧长度为35 mm,巷道留有25 mm厚顶煤。加工完成后的煤岩试样如图1、图2所示。在煤样7个部位设置了电阻式应变片,如图3所示。

图1 试验煤样(编号为A1-A8)
Fig.1 Test specimen after processing (numbered A1-A8)

图2 版型岩样加工方法示意
Fig.2 Schematic diagram of rock slab processing method

图3 煤样应变测点示意
Fig.3 Schematic of measuring points of coal strain gauges

1.2 试验设备及设计

模拟高位厚硬岩层在不同破断位置下对低位厚硬岩层的影响,进而分析高低位厚硬顶板不同破断组合模式下的区段煤柱受力特征。设计了模拟高位岩层加载试验装置,主要由回转刚板、回转驱动装置、配重钢块3部分组成(图4a)。其中回转钢板模拟高位顶板,回转钢板的回转过程模拟高位顶板的破断过程。回转驱动装置由液压千斤顶和固定件组成,回转动力由液压千斤顶提供。配重钢块用于加强结构内部强度,平衡试验装置整体的受力情况。

图4 试验加载装置
Fig.4 Test loading device

厚硬岩层破断回转试验简化模型如图5所示,将高、低位厚硬岩层破断位置与区段煤柱对应关系分成4种方案模拟,如图6所示。

图5 厚硬岩层破断回转试验简化模型
Fig.5 Simplified model for fracture rotation test of thick and hard rock

图6 采动巷道上覆多厚硬岩层侧向破断方案4种试验方案示意
Fig.6 Schematic of four test schemes for lateral failure of multiple thick hard rock layers overlying mining roadways

定义低位岩层与高位岩层破断点至采空区与区段煤柱边界线的距离分别为LH,具体方案如下:方案1,高位厚硬岩层和低位厚硬岩层均断裂于靠近采空区侧的位置,试验中2点与采空区边缘平齐,在模型中为L=0,H=0;方案2,高位厚硬岩层断裂点于煤柱中位点上方,低位厚硬岩层断裂点对齐采空区侧边缘,在模型中为L=0,H =30 mm;方案3,高位厚硬岩层断裂点对齐采空区侧边缘,低位厚硬岩层断裂点在煤柱中位点上方,在模型中为L=30 mm,H=0;方案4,高位厚硬岩层和低位厚硬岩层断裂点均位于煤柱中位点上方,在模型中为L=30 mm,H=30 mm。

试验通过万能试验机预加静载模拟高位岩层顶板垮断过程的应力加载环境,通过液压千斤顶控制回转钢板的变形模拟高位厚硬顶板垮断,开展二次采动巷道厚硬顶板不同破断位置下区段煤柱受力特征试验。相较于试验装置的夹持力与回转钢板的回转力,煤体自重带来的影响较小,配合试验装置的安装要求,将高位厚硬顶板、低位厚硬岩层顶板及煤样组合顺序进行倒置。

试验加载过程:将方形煤样夹持在试验机与回转装置之间,夹持力为等效上覆岩层载荷;通过液压泵对回转装置进行匀速加压,直至方形煤样破坏。

试验监测方案:相较于标准样尺寸较大,煤体具有冲击倾向性,借助中科院理化技术研究所的非接触式全场应变测量系统MatchID-3DHR(包括相机、照明设备和主机3个部分)如图7所示,采用数字图像相关法进行比对分析。

图7 非接触式全场应变测量系统MatchID-3DHR散斑试验装置
Fig.7 Non-contact full-field strain measurement system MatchID-3DHR speckle test device

1.3 试验力学分析

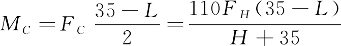
在图5所示的二维化模型中,回转压头及高低位厚硬岩层之间的均布面力,可以等效为施加在回转钢板的集中荷载,等效作用点为回转驱动装置压头与回转钢板接触面的形心。

在高低位岩层和煤柱发生破断之前,使用静力学方法进行分析,已知回转钢板长宽均为220 mm,加载面力的中心点与回转钢板中心点一致。将回转等效集中载荷记为FH,低位顶板等效集中荷载记为FL,那么高位厚硬岩层的回转力矩MH

(1)

在低位岩层破断前,由于高位岩层回转点力矩和为零可得低位岩层的等效集中荷载FL

(2)

低位厚硬岩层破断点弯矩和为零,可得煤柱剪力FC与低位顶板压力FL相同,为

(3)

低位岩板在预设断点破断前的弯矩ML

(4)

采空区边缘煤顶最大剪应力处受到的弯矩MC

(5)

LH代入式(4),式(5)可以得到4种方案下高低位岩板及煤采空区煤顶在破断发生前的最大弯矩与回转压力间的关系为

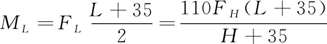
方案1,ML=110FHMC=110FH

方案

方案

方案

因所用煤样取自同一区域且加工尺寸基本一致,可以认为其具有相同的强度。根据各个方案破断前的弯矩与回转等效集中荷载间的关系可知,方案1、方案3的低位厚硬岩层最容易破断,方案1、方案4次之且破坏阈值一致,方案2相对最难破断。

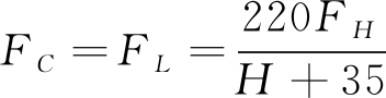
当低位厚硬岩层破断,采空区煤顶尚未破坏,且L>H时,低位厚硬岩层将在预制裂缝处产生破断后再于采空区边缘处产生二次破断,此时采空区煤顶的应力集中情况将不满足式(4)与式(5),同时由于回转角度的出现,等效集中荷载作用点将转移至采空区煤顶的中点位置,最大弯矩处为采空区边缘煤顶,此时有

FL(H+17.5)=MH=110FH

(6)

(7)

(8)

对于方案3的情况有L=30>H=0,得到

ML=MC=110FH

(9)

因此4种不同方案下采空区煤顶破坏所需回转力源F1F2F3F4的大小情况为

F1F3<F2<F4

(10)

方案1与方案3最小,方案2稍大,方案4相对需求应力最大。

2 散斑变形及应力分析

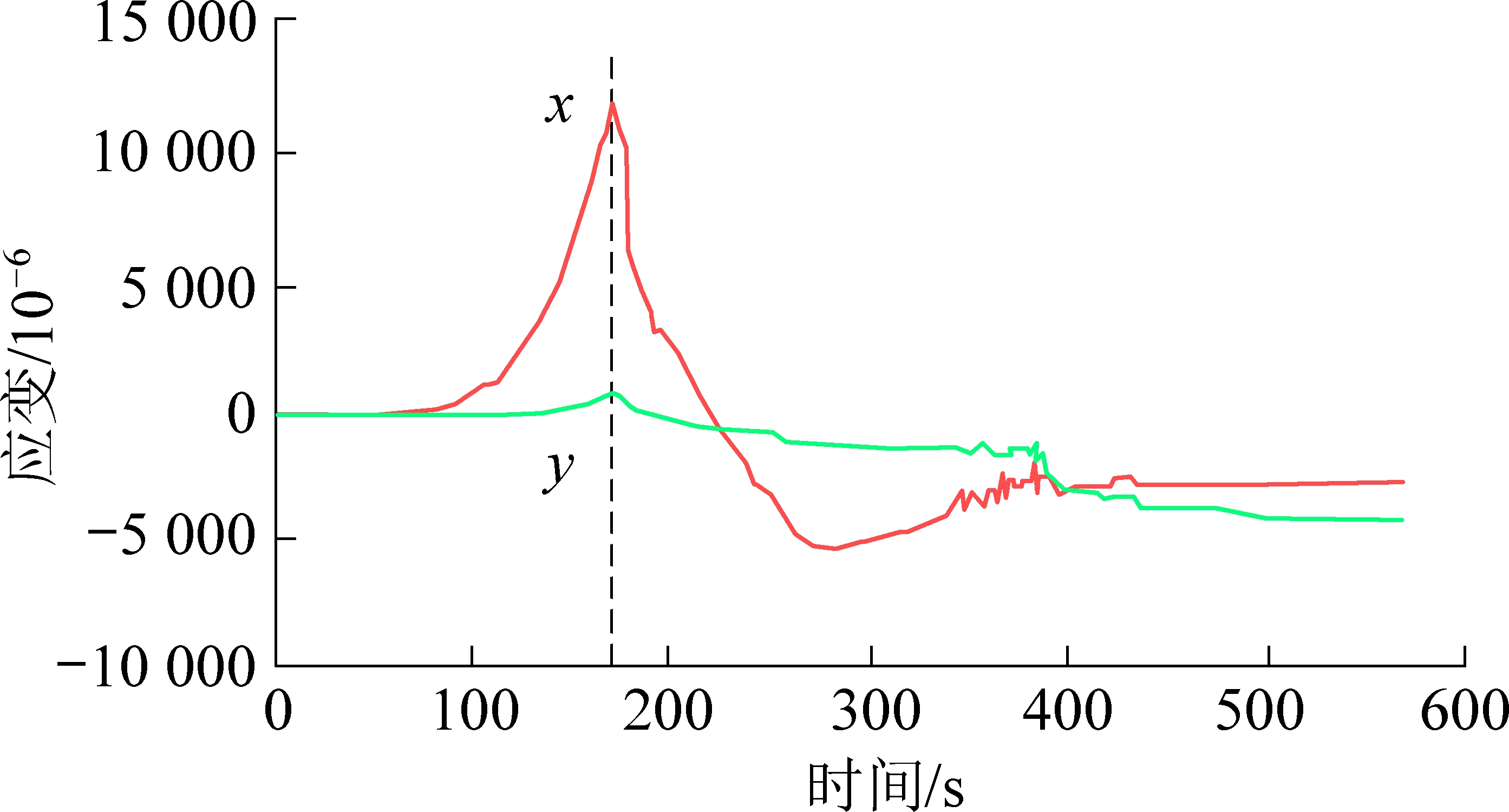
试验各个测点应变-时间曲线如图8所示,分别记录各个测点水平x方向与竖直y方向,应变为正值时表示该方向受拉,负值则表示受压。表3至表6列出了4个方案各2个试样7个测点的应变演化过程。

图8 应变演化情况(以A1测点1为例)
Fig.8 Strain evolution result (take measuring point 1 of A1 as an example)

方案1散斑图像如图9所示,可以看出,方案1试验过程中,前期加载应力较小,试验散斑结果显示为高亮黄色条带即变形主要为纵向的低程度压缩且变化值各部位均匀分布。逐步增大回转应力,采空区煤顶散斑结果显示为黄红条带,采空区煤顶受力变形最大。随着高位厚硬顶板回转角度及回转应力的增加,应力开始向采空区一侧集中,同时塑性区范围也集中在采空区靠近煤柱一侧。高应变区域垂直向上扩展发育至采空区处。通过液压机读数记录高位厚硬岩层的作用力,采空区煤顶跨落时两组试验得到的高位岩层荷载分别为2.65、2.25 kN。由表3可知,2个试件在7个测点的受力变化情况基本一致。测点3、6位于煤样中部,主要受拉,其余测点以受压为主。1、2、4三个测点在x方向先受拉,后受压,3个测点试验过程中与简支梁受均布荷载的结果近似。表明方案1中高低位岩层对煤顶起到单侧压弯的力学作用。对煤柱的应力主要为剪力作用,对巷道应力影响较小。

图9 方案1散斑图像
Fig.9 Speckle image of scheme 1

表3 方案1中试样各个测点应变演化过程
Table 3 Strain evolution process of each measuring point in the sample of scheme 1

方案1测点 A1试样 A6试样x方向 y方向x方向 y方向1拉→压拉→压压压2拉→压拉→压拉→压压3拉拉拉拉4拉→压→拉压压拉→压5拉压拉压6压→拉压→拉压压→拉7拉→压压压压

方案2散斑图像如图10所示,可以看出,随着高位厚硬岩层顶板回转应力的增加,靠近区段煤柱区域附近采空区很快出现了应力集中,表现为红黄高亮条带。同时,区段煤柱上方也出现了红色亮斑的应变增加区域,表明此时区段煤柱上方也承受了上覆顶板回转变形的挤压应力。当采空区上方煤顶垮落时,高位岩层荷载为为12.55、13.15 kN。表4的受力状态结果表明,方案2中2个试件各个测点对应的受力变化情况基本一致。测点1在xy方向均受拉,测点2与测点5在y方向受拉说明巷道上方各层顶板的压力在破断过程中降低,上方应力集中作用在采空区范围煤顶。方案2中煤柱受力较方案1范围更大,高位岩层破断对煤柱起到压剪应力作用。

图10 方案2散斑图像
Fig.10 Speckle image of scheme 2

表4 方案2中试样各个测点应变演化过程
Table 4 Strain evolution process of each measuring point in the sample of scheme 2

方案2测点 A4试样 A8试样x方向 y方向 x方向 y方向 1拉拉压→拉压→拉2压拉压拉3压压拉→压压4压→拉拉→压压→拉压5压拉压拉6压拉→压压压7压→拉拉→压拉压

方案3散斑图像如图11所示,可以看出,随着上覆高位厚硬岩层回转角度及应力的增加,应变最大区域主要集中于煤柱采空区交界顶煤。此外,由于低位厚硬岩层在区段煤柱中部破断,嵌入侧向顶板深度较大,当高位厚硬顶板回转角度增大时,低位厚硬顶板侧向悬臂岩梁变发生受载变形,挤压区段煤柱采空区侧向煤体,致使采空区一侧表现为红黄条带出现塑性区,而区段煤柱上方因受力相对均匀而未出现应变增加现象,当采空区顶板垮落时,记录液压机读数,高位岩层荷载分别为4.15、4.55 kN。表5的受力状态结果表明,方案3中2个试件各个测点对应的受力变化情况基本一致。煤顶测点1、2、3以及煤柱中部测点5、6在y方向存在明显的受拉过程,说明在方案3的破断模式下,高位岩层破断有效降低了远离采空区的煤柱上方所受压力。测点4的x方向受拉,y方向受压表征着采空区上方煤顶以及相连边界煤柱受到上覆岩层破断应力的压弯作用。

图11 方案3散斑图像
Fig.11 Speckle image of scheme 3

表5 方案3中试样各个测点应变演化过程
Table 5 Strain evolution process of each measuring point in the sample of scheme 3

方案3测点 A2试样 A3试样x方向 y方向 x方向 y方向1压拉压拉2拉→压拉→压拉→压拉3拉拉拉→压→拉拉4拉压压→拉压5拉→压拉拉→压拉6压拉拉→压拉7压拉→压拉→压拉→压

方案4散斑图像如图12所示,可以看出,方案4试验过程中,在高位顶板回转角度的变化初期,区段煤柱中部附近就出现红色高应变带且竖直方向发育明显,表明当高低位顶板破断位置均发生在煤柱上方时,由于破断位置位于采空区侧上覆顶板结构深部,较小的回转变形使得高低位厚硬顶板同步联动破断致使区段煤柱上方出现应力集中。随着回转角度的增加,应变区由垂直发育分布逐渐转为向采空区一侧倾斜,在区段煤柱采空区边缘附近出现应力集中的现象。回转加载至采空区上覆顶板断裂后,区段煤柱中部应变持续增加,靠近采空区侧水平方向应变随回转角度增加,在区段煤柱底部出现1条黄色高应变带,表明在侧向顶板垮断后,区段煤柱依然受高低位厚硬岩层侧向回转挤压应力作用,跨断时高位岩层荷载分别为15.70、17.25 kN。表6的受力状态结果表明,方案4中2个试件各个测点对应的受力变化情况基本一致。测点在xy方向主要受压,表明破断回转点在煤柱中点时高位岩层对煤柱产生挤压作用。临近采空区的4、5、6三个测点存在先受拉,再受压的受力变化情况,表明采空区附近破断前以拉力为主,破断后以受压为主。

图12 方案4散斑图像
Fig.12 Speckle image of scheme 4

表6 方案4中试样各个测点应变演化过程
Table 6 Strain evolution process of each measuring point in the sample of scheme 4

方案4测点 A5试样 A7试样x方向 y方向x方向 y方向1压→拉压拉压2压拉压拉3压→拉拉→压压→拉拉4压压拉压5拉→压拉→压拉→压拉→压6拉→压拉→压拉→压拉→压7压压压压

4种方案下的煤层采空区煤顶的破断标志着试验加载的结束。伴随着采空区煤顶的破断,煤块的受力将集中在采空区边缘支点,形成较大的剪力致使煤块在区段煤柱中部产生剪切破坏。

对比4种方案下的理论破坏载荷与试验结果间的相互关系,得到方案1与方案3破坏荷载相近且较小,方案2与方案4的破坏所需荷载较大,与模型推导得到的式(10)中的结果相符。证明随着高低位厚硬岩层破断位置的变化直接影响着采空区煤顶的稳定性与强度,同时对巷道及煤柱区段的上覆应力的变化有较大的影响。

3 分析讨论

3.1 破断位置影响

对4种典型的高低位厚硬岩层的破断位置情况进行了试验研究。结果表明,高位与低位厚硬顶板的破断对区段煤柱的应力应变具有较大的影响。顶板破断往往伴随着巨大的能量释放,容易造成下方煤顶结构强度较弱的部位发生失稳破坏,成为煤矿开采过程中的安全隐患。高位厚硬岩层与低位厚硬岩层的破断点与下方区段煤柱的相对位置与整个结构模型的承载能力密切相关,在工程实际中,应当根据高低位厚硬岩层的断层及节理情况,控制留设煤柱的宽度及位置,避免顶板破断的应力集中在采空区煤顶等承载力较弱位置。

另一方面,当区段煤柱上方厚硬顶板发生破断后,可以依据文中模型计算区段煤柱结构薄弱处的应力集中情况,针对其承载能力提前进行处理,防止失稳破坏或冲击地压灾害的发生。

3.2 工程应用分析

实际工程中,厚硬顶板的破断位置具有不可预测性,文中试验给出了4种典型破断结构下对区段煤柱的应力及变形影响。参考试验结果,结合高低位厚硬岩层的破断回转力学模型,对模型中不同LH的取值进行敏感性分析,得到各种情况下结构失稳所需的回转荷载的归一化分布情况如图13所示。

图13 破断位置HL与破坏载荷间的关系
Fig.13 Relationship between breaking position H, L and breaking load

根据LH的相对位置关系,结构破坏所需的荷载分为2种计算模型。2种情况下,整体结构破坏所需载荷分别与破断点位置LH的大小正相关。对于L<H即高位破断点滞后于低位破断点的情况,其稳定性大于L>H即高位破断点前置于低位破断点的情况。因此,在实际工程中,采空区煤顶上方附近存在厚硬岩层破断的情况,应当对区段煤柱可能受到顶板破断冲击能产生的冲击地压灾害进行预处理与防治。

4 结 论

1)利用自行设计的岩层破断回转加载装置和大尺寸煤岩试样,对比分析了采动巷道高低位厚硬岩层在区段煤柱上方4种不同破断位置组合下,低位厚硬岩层应变特征、区段煤柱的受力状态,建立了不同破断位态组合下顶板全过程载荷计算模型和区段煤柱极限强度计算模型。

2)高低位厚硬岩层不同的破断位置组合,对下部岩层的运动变形和区段煤柱应力分布和巷道围岩稳定影响显著。高低位岩层破断位置越靠近采空区,区段煤柱的应力水平越大,区段煤柱及巷道越不稳定且更容易破坏。煤体在回转作用下破坏所需的应力大小与高位岩层顶板破断点对采空区顶煤的力矩负相关。破断点靠近区段煤柱,区段煤柱受力主要为压剪;破断点远离区段煤柱时,区段煤柱受力主要为采空区煤顶传递的压弯作用。

3)高低位厚硬岩层顶板破断的相对位置影响下位顶板的破断情况。当低位破断点处于高位破断点以内,低位顶板随高位顶板破断一次。当低位顶板破断点位于高位以外,则低位岩层顶板将会随着高位岩层破断回转发生2次破断。

参考文献(References):

[1] 王步康.煤矿掘进技术与装备的现状及趋势分析[J].煤炭科学技术,2020,48(11):1-11.

WANG Bukang.Current status and trend analysis of coal mine driving technology and equipment[J].Coal Science and Technology,2020,48(11):1-11.

[2] 袁 亮. 我国煤炭资源高效回收及节能战略研究[J].中国矿业大学学报:社会科学版, 2018, 20(1): 3-12.

YUAN Liang. Strategies of high efficiency recovery and energy saving for coal resources in China[J]. Journal of China University of Mining & Technology:Social Sciences, 2018,20(1):3-12.

[3] 王佳丽. 世界能源未来何去何从-2018全球主要能源展望报告分析[J].能源, 2018(9):92-96.

WANG Jiali. Where is the future of the world’s energy-2018 major global energy outlook report analysis[J]. Energy, 2018(9):92-96.

[4] 张国宝. 重塑中的世界与中国能源格局[N].中国能源报, 2017-05-08(3).

[5] 钱鸣高, 许家林, 王家臣. 再论煤炭的科学开采[J]. 煤炭学报, 2018, 43(1): 1-13.

QIAN Minggao,XU Jialin,WANG Jiachen.Further on the sustainable mining of coal[J].Journal of China Coal Society, 2018, 43(1): 1-13.

[6] 谢和平, 王金华, 姜鹏飞, 等. 煤炭科学开采新理念与技术变革研究[J].中国工程科学, 2015, 17(9): 36-41.

XIE Heping, WANG Jinhua, JIANG Pengfei, et al. New concepts and technology evolutions in scientific coal mining[J]. Chinese Engineering Science, 2015, 17(9): 36-41.

[7] Gay N C, Jager A J, Ryder J A,et al.Rock-engineering strategies to meet the safety and production needs of the south-african mining-industry in the 21st-century [J]. Journal of the South African Institute of Mining and Metallurgy, 1995, 95(3): 115-136.

[8] 毛节华, 许惠龙. 中国煤炭资源分布现状和远景预测[J]. 煤田地质与勘察,1999, 27(3):1-4.

MAO Jiehua, XU Huilong. Chinas coal resource distribution and perspective prediction[J].Coal field geology and exploration, 1999, 27(3):1-4.

[9] 刘洪磊, 杨天鸿, 张鹏海, 等. 复杂地质条件下煤层顶板“O-X”型破断及压显现规律[J]. 采矿与安全工程学报, 2015, 32(5):793-800.

LIU Honglei, YANG Tianhong, ZHANG Penghai, et al. “O-X” failure pattern of roof and strata-pressure behaviorunder complex geological conditions[J]. Journal of Mining & Safety Engineering, 2015, 32(5):793-800.

[10] 姜福兴. 采场覆岩空间结构观点及其应用研究[J]. 采矿与全工程学报, 2006, 23(1):30-33.

JIANG Fuxing. View point of spatial structures of overlying strataand its application in coal mine[J]. Journal of Mining & Safety Engineering, 2006, 23(1):30-33.

[11] 窦林名, 贺 虎. 煤矿覆岩空间结构 OX-F-T 演化规律研究[J]. 岩石力学与工程学报, 2012, 31(3):453-460.

DOU Linming,HE Hu. Study of OX-F-T spatial structure evolution of overlying stratain in coal mines[J]. Chinese Journal of Rock Mechanics and Engineering, 2012, 31(3):453-460.

[12] SONG H, HAO Z, FU D, et al. Experimental analysis and characterization of damage evolution in rock under cyclic loading[J]. International Journal of Rock Mechanics & Mining Sciences, 2016,88:157-164.

[13] 杜 锋, 白海波.薄基岩综放采场直接顶结构力学模型分析化[J].煤炭学报, 2013, 38(8):1331-1337.

DU Feng, BAI Haibo. Mechanical analysis of immediate roof in fully mechanized topcoal caving mining with thin bedrock[J]. Journal of China Coal Society, 2013, 38(8):1331-1337.

[14] 吴则智.美国的高产高效综采工作面介绍[J].煤矿设计,1992(2):1-7.

WU Zezhi. Introduction of high-yield and high-efficiency fully mechanized mining face[J]. Coal Mine Design,1992,2:1-7.

[15] 徐德峰.高瓦斯矿井高产高效之路的探索和实践[J].中国煤炭, 2003, 29(9):60-63.

XU Defeng. Higher efficiency in highly gaseous mines:an exploration and practice[J]. China Coal, 2003, 29(9):60-63.

[16] Adhikary D P, Dyskin AV. Modelling the deformation of underground excavations in layered rock mass[J].International Journal of Rock Mechanics & Mining Science, 1997, 34(3):714-715.

[17] GALE W J,BLACKWOOD R L.Stress distributions and rock failure around coal mine roadways[J]. International Journal of Rock Mechanics and Mining Sciences and Geo-mechanics Abstracts, 1987, 24(3):165-173.

[18] 钱鸣高, 石平五. 矿山压力与岩层控制[M]. 徐州:中国矿业大学出版社, 2003:73-91.

[19] QIAN Minggao. A study of the behavior of overlying strata in long wall miningand its application to strata control[M].Strata Mechanics, ElsevierScientific Publishing Company, 1982:13-17.

[20] 钱鸣髙, 缪协兴, 许家林.岩层控制中的关键层理论研究[J]. 煤炭学报, 1996, 21(3):225-230.

QIAN Minggao, MIAO Xiexing, XU Jialin. Theoretical study of key stratum in ground control[J]. Journal of China Coal Society, 1996, 21(3):225-230.

[21] 钱鸣高. 岩层控制的关键层理论[M].徐州:中国矿业大学出版社, 2000:19-31.

[22] 宋振骐. 实用矿山圧力控制[M]. 徐州: 中国矿业大学出版社, 1988:42-51.

[23] 宋振骐, 蒋金泉.煤矿岩层控制的研究重点与方向[J].岩石力学与工程学报, 1996, 15(2): 33-39.

SONG Zhenqi, JIANG Jinquan. The current research situation and developing orientation of strata control in coal mine[J].Chinese Journal of Rock Mechanics and Engineering,1996, 15(2):33-39.

[24] 齐庆新, 潘一山, 舒龙勇, 等.煤矿深部开采煤岩动力灾害多尺度分源防控理论与技术架构[J].煤炭学报, 2018, 43(7):1801-1810.

QI Qingxin,PAN Yishan,SHU Longyong, et al.Theory and technical framework of prevention and control with different sources in multi-scalesfor coal and rock dynamic disasters in deep mining of coal mines[J].Journal of China Coal Society, 2018, 43(7) : 1801-1810.

[25] 齐庆新, 李晓璐, 赵善坤.煤矿冲击地压应力控制理论与实践[J].煤炭科学技术, 2013, 41(6):1-5.

QI Qingxin, LI Xiaolu, ZHAO Shankun. Theory and practices on stress control of mine pressure bumping[J]. Coal Science and Technology, 2013, 41(6):1-5.

[26] 齐庆新,李一哲,赵善坤,等.我国煤矿冲击地压发展70年:理论与技术体系的建立与思考[J].煤炭科学技术,2019,47(9):1-40.

QI Qingxin,LI Yizhe,ZHAO Shankun,et al.Seventy years development of coal mine rockburst in China:establishment and consideration of theory and technology system[J].Coal Science and Technology,2019,47(9):1-40.

[27] 窦林名, 陆菜平, 牟宗龙, 等.冲击矿压的强度弱化减冲理论及其应用[J].煤炭学报, 2005, 30(6):690-694.

DOU Linming,LU Caipign,MOU Zonglong, et al. Intensity weakening theory for rockburst and its application[J]. Journal of China Coal Society, 2005, 30(6):690-694.

[28] 窦林名, 陆菜平, 牟宗龙, 等. 煤岩体的强度弱化减冲理论[J].河南理工大学学报, 2005, 24(3):169-175.

DOU Linming, LU Caipign, MOU Zonglong, et al. The theory of intensity weakening for rockburst in coal mine[J]. Journal of Henan Polytechnic University, 2005, 24(3):169-175.

Experimental study on fracture mode of lateral high and low thick and hard roof in mining roadway

ZHAO Shankun1,2, ZHAO Yang1,2, WANG Chunlai3, WANG Yin1,2, CHEN Zeng3

(1.Mine Safety Technology Branch of China Coal Research Institute, Beijing 100013,China; 2.Mine Safety Technology Branch of China Coal Research Institute, Beijing 100013,China ; 3.School of Energy and Mining Engineering,China University of Mining and Technology-Beijing, Beijing 100083, China)

Abstract:The appearance of rock bursts in Shaanxi and Inner Mongolia area mostly occurs under the influence of secondary excavation disturbance. The breaking of the thick and hard rock structure above the coal seam induces the appearance of dynamic pressure near the working face and has become a major safety hazard in coal mine production. In order to clarify the impact of the breaking of the high and low thick hard rock layers overlying the mining roadway on the strength of the section coal pillars and the stability of the roadway surrounding rock and establish the mechanical model of the breaking structure of the high and low thick hard rock layers, and obtain the section coal pillars under the influence of the breaking disturbance structural deformation characteristics and stress distribution characteristics. The authors take the coal sample from the 11th panel of Bayangole Coal Mine as the research object, use a self-designed and processed high-level rock layer simulation loading device, and use the digital speckle correlation analysis method of the non-contact full-field strain measurement system, carry out the stress and deformation characteristics of the section coal pillars and low-level rock formations under the combination of different breaking positions of the high and low thick hard rock layers above the section coal pillars. The force characteristics and stress transfer mechanism of the coal pillars under the combination of different fracture positions of the overlying high and low thick hard rock layers are analyzed, and the mechanical models of the different fracture positions of the thick and hard roof on the upper part of the roadway and the overall instability load of the structure are established. The test results showed that the breaking of high and low thick and hard roof rock layers will cause stress concentration in the coal pillar goaf. The combination of different breaking positions of high and low thick and hard rock layers has a significant impact on the movement and deformation of the lower rock layers, the stress distribution of the section coal pillars, and the stability of the surrounding rock of the roadway. The overall structural stability of the coal pillar in the section is related to the location of the breaking point. The stress required for the failure of the coal body under the action of rotation is negatively related to the moment of the breaking point of the high-level rock roof on the top coal in the goaf. As the breaking point is farther away, the section coal pillar's force is gradually transformed from compression and shear to the compression and bending effect transmitted by the coal roof of the goaf. The relative position of the top slab breaking of the high and low thick hard rock layers affects the breaking of the low roof. When the low breaking point is within the high breaking point, the low roof will break once with the high roof. Otherwise, the low rock roof will rotate twice as the high rock breaks. Times broken. With the breaking of the high roof, the stress of the mining roadway and the overlying strata of the coal pillar is reduced, the stability of the coal pillar in the section decreases, and the risk of rock burst increases. The experimental research provides a reference for the prevention and control of dynamic disasters in mining roadways and the optimization of section coal pillar design under the conditions of deep thick and hard roof in Shaanxi and Inner Mongolia.

Key words:mining roadway; rock burst; section coal pillar; thick and hard rock layer; fracture simulation test device

中图分类号:TD32

文献标志码:A

文章编号:0253-2336(2021)04-0111-10

移动扫码阅读

赵善坤,赵 阳,王春来,等.采动巷道侧向高低位厚硬顶板破断模式试验研究[J].煤炭科学技术,2021,49(4):111-120.doi:10.13199/j.cnki.cst.2021.04.014

ZHAO Shankun, ZHAO Yang, WANG Chunlai,et al.Experimental study on fracture mode of lateral high and low thick and hard roof in mining roadway[J].Coal Science and Technology,2021,49(4):111-120.doi:10.13199/j.cnki.cst.2021.04.014

收稿日期:2020-10-28责任编辑:李金松

基金项目:国家重点研发计划资助项目(2017YFC0804203);国家自然科学基金资助项目(51874176,52034009);国家油气重大专项资助项目(2016ZX05045003-006-002)

作者简介:赵善坤(1982—),男,辽宁葫芦岛人,博士,副研究员,中国煤炭科工集团三级首席科学家。E-mail:zhaoshankuncom@163.com

通讯作者:赵 阳(1989—),男,河南郑州人,博士,助理研究员。E-mail:zhao_no1@126.com